A Professional Contracting Company
A Professional Contracting Company

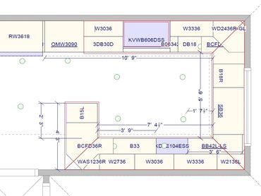
Planning a project is an exciting process. After measuring, photos and getting feedback, information is put into our building software allowing us to draw out a space digitally.

3D designing is a service we offer only with projects that consist of significant layout changes; kitchens, bathrooms, basements, etc... We even apply this to commercial spaces.

This service allows a visual perspective to see placement of fixtures in the new layout. All designs created are too scale in most cases to ensure a realistic result.



Innozign Contracting
1346 How Lane, Suite 201, North Brunswick, NJ 08902